Dans cette version d’ouverture permettant de gagner de l’espace, le vantail peut être facilement basculé et coulissé sur le côté. Le grand confort d’utilisation, les multiples possibilités de positionnement pour l’aération sans vantail gênant et les valeurs élevées de performance technique sont caractéristiques de ce type d’ouverture du système de fenêtre en aluminium WICLINE evo.
PERFORMANCES TECHNIQUES
Performances thermiques :
Uw jusqu’à 0,87 W/(m²K) avec triple vitrage
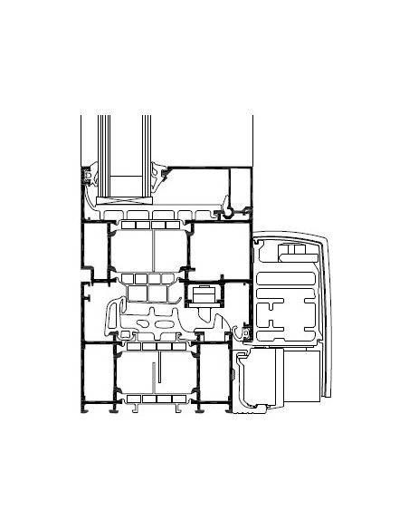
Principe du système :
- Profilés à haute performance thermique avec barette double/triple chambres
- Assemblage avec des équerres spécifiques à injection de colle, brevet WICONA
- Prises de volume : jusqu’à 59 ou 69 mm
- Joint central bi-composant pour étanchéité supérieure
Quincaillerie :
- Quincaillerie oscillo-battante, option
• Sans opération forcé (sof)
• Avec opération forcé (aof)
- Poids max. par vantail :
• 160 kg (sof)
• 200 kg (aof)
- Dimensions max.
• L 1.685 mm x H 2.500 mm (sof)
• L 2.000 mm x H 2.700 mm (aof)
Finitions :
- Anodisée Qualanod label AWWAA.EURAS c
- Thermolaquée Qualicoat label Qualité MARINE
- Thermolaquée Bicoloration label Qualité MARINE
- Finitions WICCOLOR brillance 30 % ou satinées
.png)
.png)