Intelligente combinaison d’une géométrie optimale et de matériaux de qualité, la nouvelle solution de système de fenêtre heroalW77 se caractérise par sa profondeur de montage de seulement 77mm et son coefficient de transmission thermique d’une valeurUf de 0,95W/m²K (largeur visible de 120mm). Le système est ainsi la solution idéale permettant d’atteindre les performances énergétiques de maisons passives. Avec cette innovation, heroal parvient à aligner de manière durable la fenêtre en aluminium thermiquement séparée sur les exigences écoénergétiques d’aujourd’hui (EnEV2016), mais aussi sur celles de demain, visant à créer des bâtiments à consommation quasi nulle, aussi appelés «?nearly zero-energy buildings?».
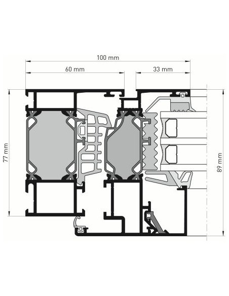
Dimensions du système
Profondeur des profilés [mm]
- Profilés de cadre 77
- Profilés de porte 89
- Profilés intercalaires 77
Largeur visible des profilés [mm]
- Profilés de cadre 50 - 250
- Profilés de porte 33 - 67
- Profilés intercalaires 74 - 254
Variantes de profilés de battants
- Rainure de ferrure de la tringle de commande [SBN] •
- Rainure de ferrure en plastique [KBN] •
Propriétés
- Épaisseur du verre / du panneau [mm] 66
- Poids max. des portes [kg] 300
- Hauteurs max. de portes [mm] 2.800

4 Rigidité mécanique

C5/B5 Résistance au vent !) Autorisations spéciales en fonction de l’application, délivrées par heroal en cas d’éléments surdimensionnés

RC4 Résistance à l’effraction

1 Forces de manœuvre

Fonction continue

0,95/120 Isolation thermique [Uf en W/m2K]

4 Perméabilité à l’air

Résistance aux chocs

1-5 Isolation phonique

>0,72 Isolation thermique [Uw en W/m2K]

✓ Portance des dispositifs de sécurité

9A Étanchéité à la pluie battante
* Valeur Uw selon DIN EN ISO 10077-1 ; calculée sur un élément de 1230 x 1480 mm ; largeur visible de profilé standard
!) Autorisations spéciales en fonction de l’application, délivrées par heroal en cas d’éléments surdimensionnés
.png)