Le système de fenêtre heroal W 72 CW propose aux bureaux d'études des variantes conceptionnelles individuelles, adaptées au bâtiment concerné pour éléments de fenêtres à hauteur de plafond. Des ouvertures de grandes surfaces sont ainsi obtenues en exécution classique montant-traverse. Différentes variantes de profilés font du système composite en aluminium heroal W 72 CW une alternative intéressante aux façades en acier.
Dimensions du système
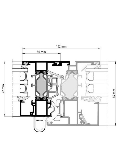
Profondeur des profilés [mm]
- Profilés de cadre 72/106
- Profilés de porte 76,5/79
- Profilés intercalaires 72/106
Largeur visible des profilés [mm]
- Profilés de cadre 33 - 58
- Profilés de porte verdeckt
- Profilés intercalaires 50
Variantes de profilés de battants
- Rainure de ferrure de la tringle de commande [SBN] •
- Rainure de ferrure en plastique [KBN] •
Propriétés
- Épaisseur du verre / du panneau [mm] 48
- Poids max. des portes [kg] 130
- Hauteurs max. de portes [mm] 2.400

Isolation phonique

Rigidité mécanique

4 Perméabilité à l’air

9A Étanchéité à la pluie battante

Résistance à l’effraction

C3/B3 Résistance au vent

Résistance aux chocs

Portance des dispositifs de sécurité

Forces de manœuvre

Fonction continue

1,7/85 Isolation thermique [Uf en W/m2K]

>0,87* Isolation thermique [Uw en W/m2K]
* Valeur Uw selon DIN EN ISO 10077-1 ; calculée sur un élément de 1230 x 1480 mm ; largeur visible de profilé standard
!) Autorisations spéciales en fonction de l’application, délivrées par heroal en cas d’éléments surdimensionnés
.png)