Le système de profilé de la série W 65 d’heroal propose des solutions économiques pour les fenêtres ouvrant vers l’intérieur et l’extérieur. En combinant des ferrures de système éprouvées avec des composants systèmes heroal, les profilés 3 chambres offre la meilleure sécurité possible. Le système de fenêtre de la série W 65 d’heroal répond ainsi aux exigences les plus strictes en termes d’isolation phonique et de résistance à l’effraction.
Dimensions du système
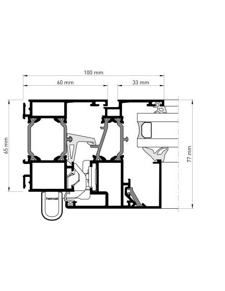
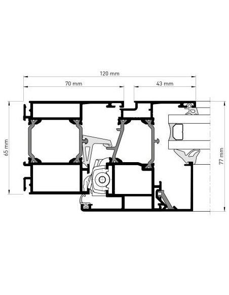
Profondeur des profilés [mm]
- Profilés de cadre 65
- Profilés de porte 75
- Profilés intercalaires 65
Largeur visible des profilés [mm]
- Profilés de cadre 50 - 154
- Profilés de porte 33 - 67
- Profilés intercalaires 74 - 254
Variantes de profilés de battants
- Rainure de ferrure de la tringle de commande [SBN] •
- Rainure de ferrure en plastique [KBN] •
Propriétés
- Épaisseur du verre / du panneau [mm] 58
- Poids max. des portes [kg] 300
- Hauteurs max. de portes [mm] 2.400

4 Perméabilité à l’air

RC 3 Résistance à l’effraction

1-5 Isolation phonique

>1,3* Isolation thermique [Uw en W/m2K]

9A Étanchéité à la pluie battante

✓ Portance des dispositifs de sécurité

4 Rigidité mécanique

3 Résistance aux chocs

2,2/120 Isolation thermique [Uf en W/m2K]

C5/B5 Résistance au vent

2 Fonction continue

1 Forces de manœuvre
* Valeur Uw selon DIN EN ISO 10077-1 ; calculée sur un élément de 1230 x 1480 mm ; largeur visible de profilé standard
!) Autorisations spéciales en fonction de l’application, délivrées par heroal en cas d’éléments surdimensionnés
.png)